XtendLan 19" univerzální rozvaděč s montážní deskou, krytí IP66, šířka 600mm, hloubka 350mm, výška 760mm, šedý
Popis a parametry
XtendLan 19" univerzální rozvaděč s montážní deskou, krytí IP66, šířka 600mm, hloubka 350mm, výška 760mm, šedý
XtendLan univerzální rozvaděč s montážní deskou, 600x350x760 - krytí IP66
šířka 600mm, hloubka 350mm, výška 760, šedý
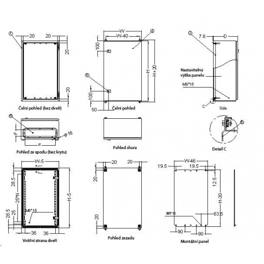
Univerzální rozvaděč, IP66, ocelový, šedý. Třívrstvá povrchová úprava (fosfátování, máčení v základním laku, práškový lak), zaměnitelné dveře, pevná konstrukce. Odnímatelný kryt kabelového průchodu. Rozvaděč je vyroben z válcované oceli o tloušťce 1,5 mm. Standardy: IEC60529, EN60529/10.91, GB4208-93 Provedení: dveře - plné, otevíratelné o 110 stupňů, montáž pravá nebo levá (uživatelsky zaměnitelné otevírání) zádní kryt - plný boční kryt - plný horní kryt - plný montážní deska:
- tloušťka montážního panelu 2,5mm, válcovaná ocel
- šířka menší o 46mm než vnější šířka skříně
- výška menší o 30mm než vnější výška skříně
- barva oranžová (RAL 2000)
- zemnící šroub s krytkou (M8x15)
- odsazení desky od zadní stěny standardně 21mm, nastavitelné do délky upevňovacích šroubů
- montážní šrouby
- univerzální klíč
| Technické specifikace: | |
| Výška: | 760 mm |
| Šířka: | 600 mm |
| Hloubka: | 350 mm |
| Materiál: | válcovaná ocel třívrstvá povrchová úprava |
| Tloušťka: | 1,5 mm |
| Povrchová úprava: | šedá, RAL7032 |
ParametryPorovnání
Typ datového rozvaděče
Venkovní
Barva rozvaděče
Šedá
XtendLan 19" univerzální rozvaděč s montážní deskou, krytí IP66, šířka 600mm, hloubka 350mm, výška 760mm, šedý
Naposledy navštívené








